Save the Stump

LOCATION
Cambridge, MA, USA

DATE
2023

STATUS
Speculative

CRITIC
Jeanne Gang

Harvard University’s Peabody Terrace, designed in 1965 by José Luis Sert, remains a significant example of modernist campus housing. Conceived to accommodate graduate students with families, the project formed part of Sert’s broader master plan for the university, which emphasized open space and circulation as strategies for fostering connection between Harvard and the surrounding Cambridge community.

Harvard University’s Peabody Terrace, designed in 1965 by José Luis Sert, remains a significant example of modernist campus housing. Conceived to accommodate graduate students with families, the project formed part of Sert’s broader master plan for the university, which emphasized open space and circulation as strategies for fostering connection between Harvard and the surrounding Cambridge community. Over time, however, the complex’s central parking structure, colloquially known as “The Stump,” has come to represent the opposite: a physical and symbolic barrier between campus and neighborhood.

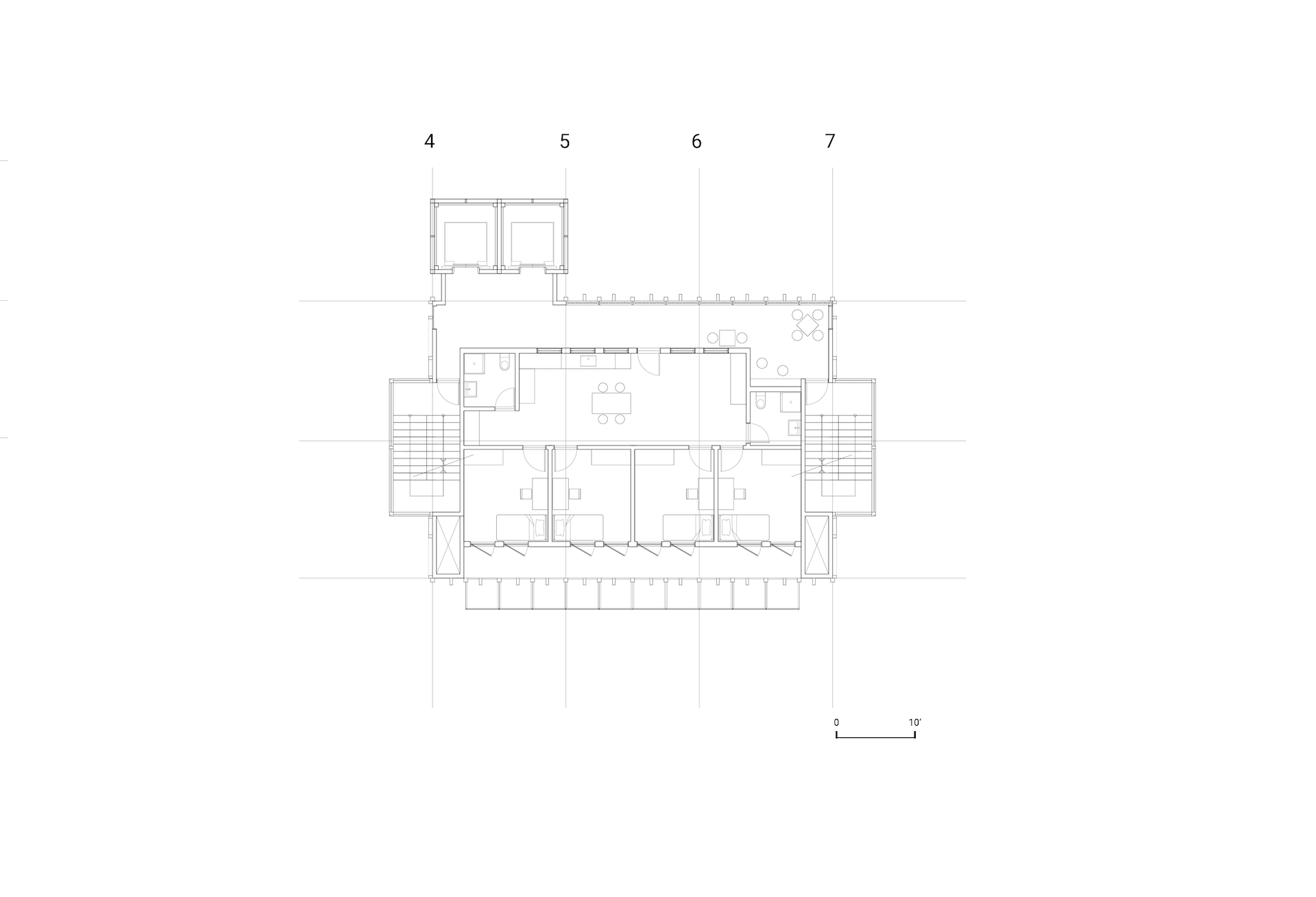
This proposal envisions the transformation of The Stump into a vibrant public space that reestablishes dialogue between Harvard and its urban context. Rather than demolish the garage, the project adopts a strategy of grafting, drawing from the botanical practice of splicing new growth onto existing structures. Through precise cuts and structural reinforcements, a series of prefabricated mass timber volumes are introduced atop the concrete base, forming a hybrid architectural system that is both materially sustainable and spatially adaptive.

The upper level of the garage is reprogrammed to host a range of community-oriented functions including event space, study areas, workshops, and informal gathering zones. The lower level remains a functioning garage, preserving its infrastructural role while enabling a broader social use. Adjacent to the intervention, a new residential tower offers a healthy mix of low-cost housing and graduate dormitory units. This promotes proximity, overlap, and everyday exchange between students and local residents.

Through these spatial and programmatic layers, the project reclaims The Stump as a point of connection rather than division, creating an interface where institutional and civic life converge. In doing so, it reactivates Sert’s original ambitions for Peabody Terrace and advances a vision of campus architecture grounded in openness, integration, and collective engagement.